Beschrijving
Gezinswoning met verrassend veel ruimte en comfort!
Op zoek naar die ideale plek in Klein Zundert waar jij als starter of jong gezin écht kunt wortelen? Zet Burgemeester Kievitslaan 11 alvast bovenaan je lijstje. Deze ruime, geschakelde twee-onder-één-kap woning blinkt uit in comfort en gemak. Gelegen in een kindvriendelijke wijk, dichtbij allerlei voorzieningen, vind je hier alles wat een modern gezin zich kan wensen.
Royale leefruimte, perfect voor het gezinsleven.
Binnenstappen in deze woning voelt direct als thuiskomen. Aan ruimte geen gebrek: de praktische indeling biedt volop mogelijkheden om een gezellige woonkamer te creëren én nog voldoende plek over te houden voor een grote eettafel of speelplek voor de kinderen. Gunstig geplaatst aan Burgemeester Kievitslaan geniet je hier van de rust van de wijk, zonder in te leveren op bereikbaarheid.
Energiezuinig en klaar voor de toekomst.
Bouwen in 1987 betekent degelijke kwaliteit, maar deze woning is met z’n tijd meegegaan. Dankzij de 10 zonnepanelen ga je niet alleen efficiënt om met je energie, maar ben je ook voorbereid op de toekomst. Goed voor het milieu èn je portemonnee! De kunststof kozijnen zorgen daarbij voor weinig onderhoud en een strakke uitstraling. En laten we de twee airco's niet vergeten; die garanderen comfort, ook tijdens de heetste zomerdagen.
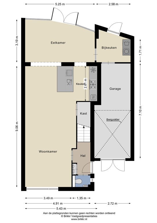
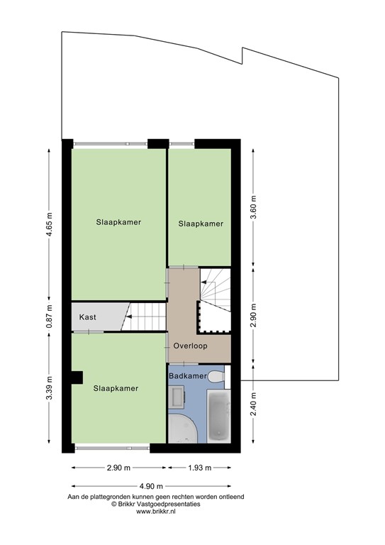
Vier slaapkamers: volop opties.
Ideaal aan deze gezinswoning is het feit dat er maar liefst vier slaapkamers zijn. Perfect voor een (toekomstig) groeiend gezin of bijvoorbeeld een thuiskantoor. Bijkomend voordeel: geen geschipper meer over wie welke kamer krijgt. Je hebt simpelweg ruimte genoeg!
Genieten in de riante tuin.
In de mooie, ruime achtertuin hoef je geen concessies te doen. Barbecueën op een zwoele zomeravond, voetballen met de kids of gewoon lekker ontspannen met een boek – jij kiest! De fraaie overkapping, gerealiseerd in 2024, maakt het plaatje af. Ideaal voor lange avonden buiten zitten, ongeacht het weer. De schuur (onder de overkapping) biedt bovendien voldoende ruimte om, speelgoed of tuingereedschap netjes opgeborgen te houden.
Hier woon je dicht bij alles.
De ligging? Die is natuurlijk top. Kinderen kunnen veilig buitenspelen, supermarkten, scholen en bushaltes liggen allemaal binnen handbereik. De uitvalswegen richting Breda, Roosendaal en Etten-Leur zijn vlot bereikbaar, wat woon-werkverkeer duurzaam en voorspelbaar maakt. Dat betekent dus méér tijd voor jezelf en het gezin!
Een huis dat je zó kunt betrekken.
Het huis is keurig onderhouden, je hoeft eigenlijk alleen maar te verhuizen en je eigen spullen op hun plek te zetten. De neutrale afwerking vormt een perfecte basis voor iedere smaak, welke stijl je ook kiest. Maak het geheel persoonlijk en richt het zó in dat het feilloos aansluit bij jouw manier van leven.
Samengevat:
- Ruime, geschakelde twee-onder-een-kap woning ;
- Ligging in kindvriendelijke wijk;
- Perceel van 219 m² en een royale achtertuin;
- Bouwjaar 1987, voorzien van energielabel C (label opgesteld voor de zonnepanelen en HR++ glas);
- 10 zonnepanelen;
- Kunststof kozijnen met hr++ glas: onderhoudsarm, energiezuinig en modern;
- Vier slaapkamers;
- Twee airco’s op 1e verdieping voor optimaal comfort;
- Gloednieuwe overkapping met schuur (2024);
- Garage.
Zie jij jezelf hier al wonen? Aarzel dan niet en plan snel een bezichtiging in, want huizen als deze zijn zeldzaam! Welkom op Burgemeester Kievitslaan 11: dé plek waar je jaren zorgeloos kunt genieten.
Plattegronden
180018067_burg_kievitsla_bg_first_design_20251203_5b99e3.jpg
180018067_burg_kievitsla_1ste_first_design_20251203_44fd78.jpg
180018067_burg_kievitsla_2de_first_design_20251203_91e02c.jpg
180018067_burg_kievitsla_berging_first_design_20251203_919c2b.jpg