Beschrijving
Wonen aan de Tasmanstraat: karakter, comfort en gemak in hartje Leiden
Sfeervolle jaren ’30 tussenwoning met verrassend veel vernieuwing
Heerlijk wonen in het levendige Leiden, met alle moderne gemakken en toch de charme van een authentieke jaren ’30 woning? Tasmanstraat 88 is precies zo’n huis waar karakter en hedendaags wooncomfort hand in hand gaan. Deze goed verzorgde eengezinswoning uit 1935 ademt sfeer.
Modern wooncomfort, historisch fundament
Met een recent vernieuwde keuken (2022), badkamer (2020) én een spiksplinternieuwe cv-ketel (2022), meter- en groepenkast hoef je nergens meer over in te zitten. De woonkamer en keuken zijn bovendien voorzien van behaaglijke vloerverwarming: geen koude voeten meer wanneer je ’s ochtends met een verse koffie het daglicht begroet! Dat zijn nog eens extra’s die je niet vaak ziet bij woningen uit dit bouwjaar.
Indeling met oog voor ruimte
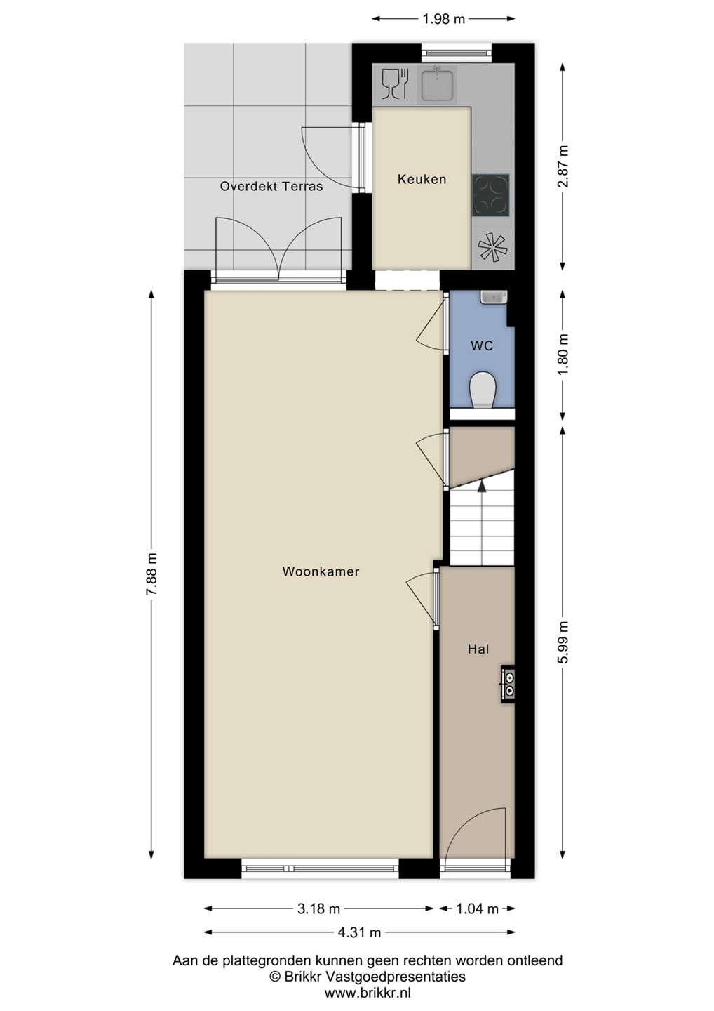
Aangekomen bij nummer 88 springt meteen op dat de gevel past in het straatbeeld waar de wijk om bekend staat. Eenmaal binnen word je aangenaam verrast door de praktische indeling. Je loopt direct de lichte woonkamer binnen, ideaal voor lange avonden met het gezin. De voortreffelijke keuken – modern, strak en compleet – biedt volop mogelijkheden om gastronomisch uit te pakken. Uitgebreid koken wordt hier wel erg gemakkelijk!
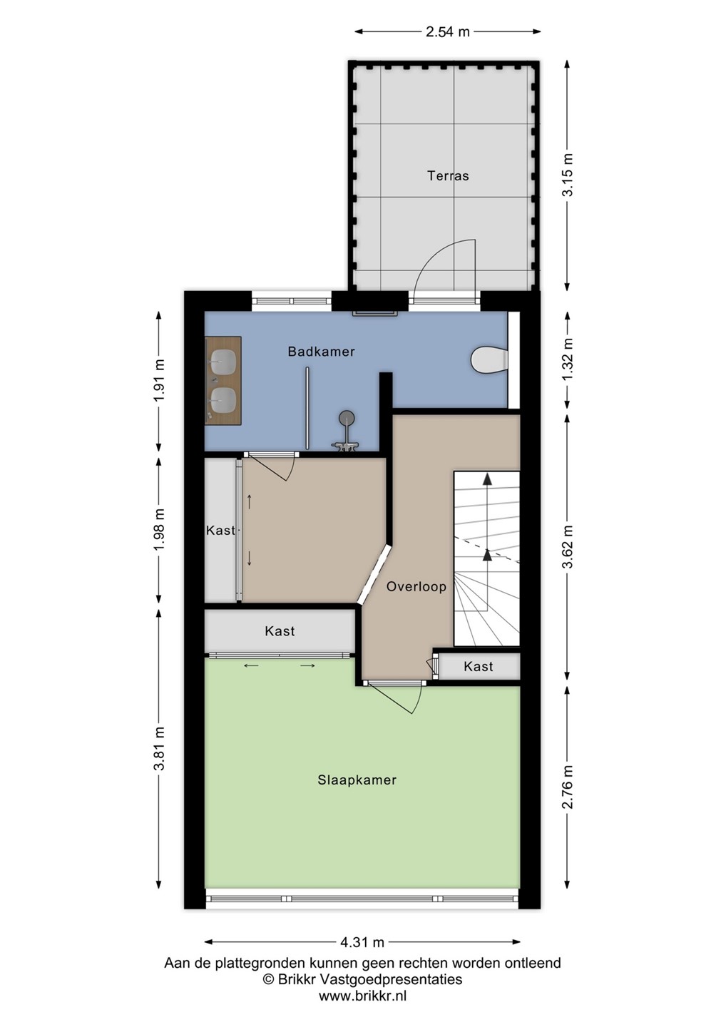
Via de hal bereik je de eerste verdieping, waar je een zeer ruime slaapkamer en een frisse, eigentijdse badkamer vindt. Het geheel is turn-key: je hoeft in principe alleen je verhuisdozen in te pakken.
Genieten van eigen tuin mét berging
Zin in buitenlucht? Via de achterdeur en openslaande deuren stap je zo de achtertuin in, waar een houten berging de ideale plek biedt voor fietsen, tuinmeubilair of een kleine hobbywerkplek. De tuin is onderhoudsarm, dus wie houdt van loungen in plaats van werken, zit hier goed.
Idyllische ligging, alles vlakbij
De ligging in de wijk Leiden is ronduit ideaal. Je woont rustig, maar met alle stedelijke voorzieningen binnen handbereik. Diverse scholen, winkels, speelplekken en openbaar vervoer zijn op korte afstand aanwezig. Gezinnen vinden hier hun thuis, maar ook doorstromers en ouderen weten hun weg te vinden naar deze buurt. Of je nu de stad wilt ontdekken, of juist graag tot rust komt in je eigen huis, de Tasmanstraat biedt het allemaal.
Een bewuste keuze: energie & duurzaamheid
Hoewel het energielabel E betreft, heeft de woning belangrijke stappen voorwaarts gemaakt. Met onder andere vloerverwarming en recente installaties zoals de cv-ketel en elektrische voorzieningen is er flink geïnvesteerd in comfort en energiezuinigheid.
Samengevat: een woning voor nu én later
Kortom, Tasmanstraat 88 biedt een buitenkans voor iedereen die houdt van karakter, maar niet wil inleveren op comfort. Of je nu op zoek bent naar een gezinswoning, wilt doorstromen naar een groter (of juist slimmer!) huis, of als oudere behoefte hebt aan een makkelijk te onderhouden knusse woning — kom vooral kijken. Deze parel is klaar voor de volgende hoofdstuk… misschien is het wel jouw verhaal dat hier verdergaat?
Nieuwsgierig geworden? Laat deze kans niet aan je voorbijgaan en plan snel een bezichtiging!