Beschrijving
Sint Janshof 28 te Wernhout
Deze fraaie twee-onder-een-kap huis uit 1986 staat met rechte rug te pronken in een kindvriendelijke wijk. De voortuin is keurig aangelegd, wat direct een fijne eerste indruk achterlaat. Zet je eenmaal voet over de drempel, dan word je begroet door een lichte hal. Hier voel je meteen: dit is meer dan een huis, dit is een thuis voor hen die verlangen naar ruimte én geborgenheid.
Comfortabel leven met alle gemakken onder handbereik
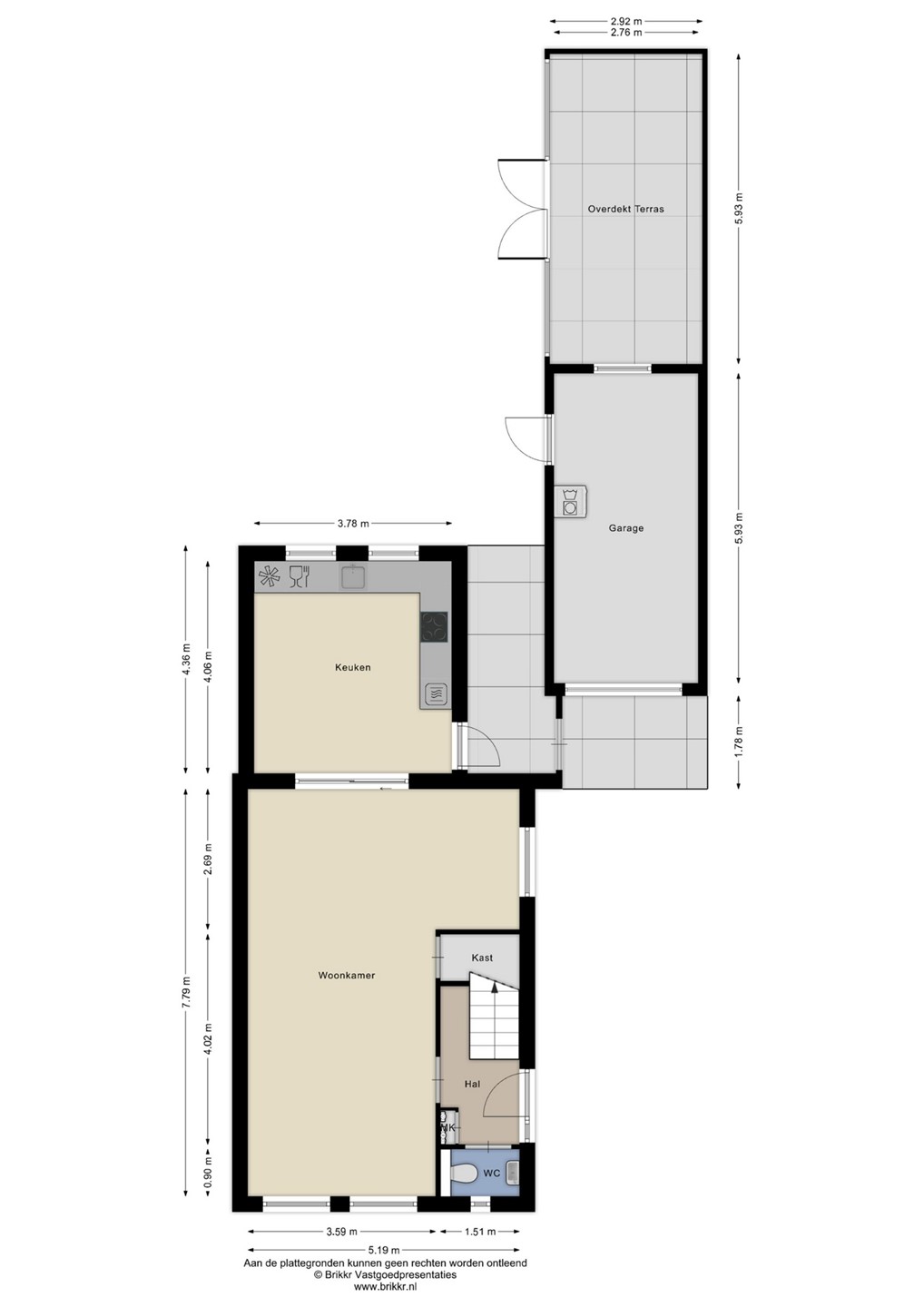
De woonkamer is lekker ruim en baadt in daglicht, dankzij een flinke raampartij. Hier kun je op koude avonden samen kruipen op de bank, terwijl je in de open keuken geniet van elkaars gezelschap. Koken doe je hier met plezier! Natuurlijk ontbreekt het niet aan bergruimte, zodat alles netjes opgeborgen blijft.
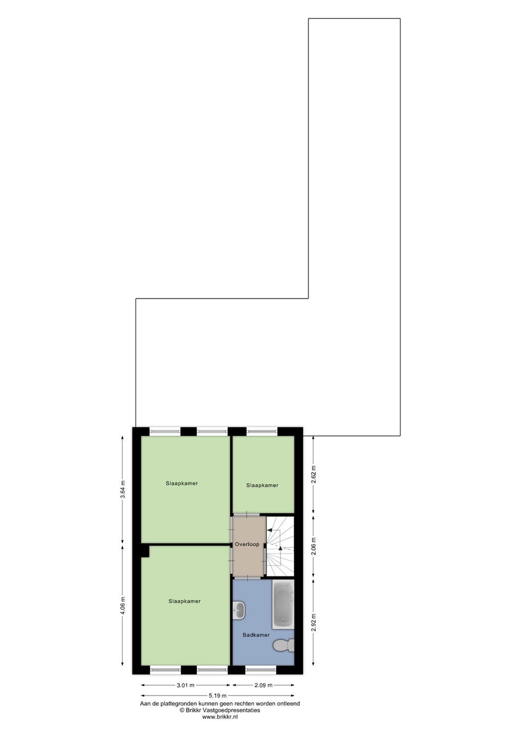
Loop mee naar boven en ontdek maar liefst drie slaapvertrekken. Voor jonge gezinnen betekent dit: iedereen een eigen plek! De kamers zijn eenvoudig naar smaak in te richten. Misschien droomt de kleine van een heuse piratenkamer, of richt jij liever een thuiswerkplek in. Keus te over!
Buitenleven als verlengstuk van je huis
En kijk, de tuin! Schuif de glazen wand van de overkapping open. Hier krijg je het beste van twee werelden. In de zomer zit je buiten én toch beschut, terwijl je bij minder weer droog geniet van een goed boek of een glas wijn. De tuin, met zijn royale perceel van 231 m², biedt volop mogelijkheden voor buitenspelen, gezellig bbq’en of simpelweg tot rust komen.
En praktisch dat het is! Je beschikt over een eigen garage – perfect voor de fietsen, klusspullen of, heel klassiek, natuurlijk gewoon de auto.
Rust, ruimte en een vleugje dorpse charme
Verlang je soms naar een gemoedelijke sfeer waarin kinderen onbezorgd op straat spelen? Waar buren nog tijd maken voor een praatje over de heg? Hier, aan deze beschutte straat, vind je het allemaal. Een ideale plek voor starters of jonge gezinnen die willen settelen, zonder concessies te doen aan comfort en bereikbaarheid.
Duurzaam en klaar voor de toekomst
Fijn om te weten: het energielabel C garandeert je een goede basis qua isolatie en energiezuinigheid. Zo woon je comfortabel én met oog voor de toekomst. Wel zo prettig, want dan houd je meer over voor de leuke dingen des levens.
Slaap zacht en leef groots op Sint Janshof 28
Kortom: deze eengezinswoning combineert het beste uit twee werelden. Waar een intieme, rustige ligging en praktische indeling samenkomen met gezellig buitenleven en tijdloze kwaliteit. Zie jij jezelf hier al wonen? Schroom dan niet en zet die volgende stap en maak snel een afspraak voor een bezichtiging. Wie weet zeg jij straks, nét zo enthousiast als wij: “Hier hoor ik thuis!”